3 Lampen bei der vorderen Innenbeleuchtung

Antworten
Stef_Volt
60 kW - range-extended
Beiträge: 93
Registriert: 3. Sep 2014 10:40
Wohnort: 3464 Goldgeben
Kontaktdaten:

3 Lampen bei der vorderen Innenbeleuchtung

Beitrag von Stef_Volt »

Hi!

Durch das einlöten 2er Diden leuchten beim Einsteigen oder aber auch durch das Einschalten der Innenbeleuchtung alle 3 Lampen der vorderen Innenbeleuchtung. :lol:
Also nicht nur die mittlere Lampe sondern auch die beiden Leselampen!
Dateianhänge
IMAG1314.jpg
IMAG1314.jpg (36.46 KiB) 14317 mal betrachtet
IMAG1313.jpg
IMAG1313.jpg (40.54 KiB) 14317 mal betrachtet
IMAG1311.jpg
IMAG1311.jpg (34.6 KiB) 14317 mal betrachtet
Zuletzt geändert von Stef_Volt am 10. Jan 2015 14:32, insgesamt 2-mal geändert.
Voltegrüße, Stefan

Chevy Volt 09-2014

PV-Anlage mit 5,16 kWp
https://www.sunnyportal.com/Templates/P ... c5cc97a9da
http://members.aon.at/skomarek/
Stef_Volt
60 kW - range-extended
Beiträge: 93
Registriert: 3. Sep 2014 10:40
Wohnort: 3464 Goldgeben
Kontaktdaten:

Re: 3 Lampen bei der vorderen Innenbeleuchtung

Beitrag von Stef_Volt »

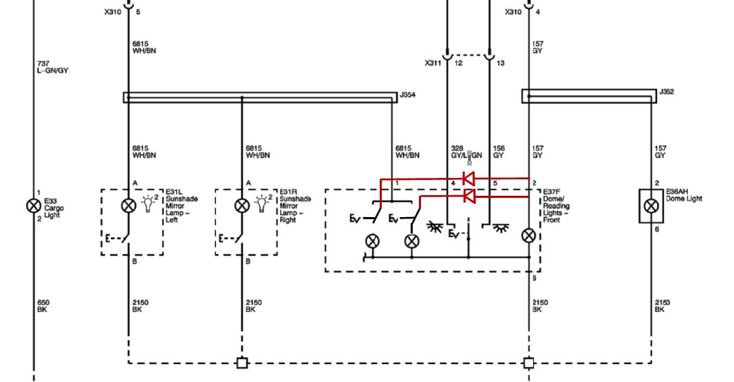
Schaltplan:
Dateianhänge
Schaltplan.JPG
Schaltplan.JPG (49.11 KiB) 14316 mal betrachtet
Voltegrüße, Stefan

Chevy Volt 09-2014

PV-Anlage mit 5,16 kWp
https://www.sunnyportal.com/Templates/P ... c5cc97a9da
http://members.aon.at/skomarek/
atomroflman
111 kW - voll elektrisch
Beiträge: 429
Registriert: 2. Jul 2013 13:40
Kontaktdaten:

Re: 3 Lampen bei der vorderen Innenbeleuchtung

Beitrag von atomroflman »

Coole Sache das. :)
Ich habe mich immer gefragt wozu der Fahrer eine Leselampe hat. Nun weiß ich es.

Richtet sich die Beleuchtung der Äußeren Lampen dann auch nach dem Schalter in der Mitte oder sind die dann immer überbrückt beim Tür öffnen?

Geht das auch für die hintere Lampen?
Ich brauch kein Gaspedal, ich habe ein Potentiometer... :)
Stef_Volt
60 kW - range-extended
Beiträge: 93
Registriert: 3. Sep 2014 10:40
Wohnort: 3464 Goldgeben
Kontaktdaten:

Re: 3 Lampen bei der vorderen Innenbeleuchtung

Beitrag von Stef_Volt »

Hi!
Es leuchten die beiden Leselampen vorne immer mit der mittleren Innenraumlampe mit. Egal ob eine Türe geöffnet wird oder du die Innenbeleuchtung mit den Schalter einschaltest.
Bei der hinteren Leuchte ändert sich nichts. Da gibt es ja auch nur die beiden Leselampen die gleichzeitig als Innenbeleuchtung dienen.

BG Stefan
Voltegrüße, Stefan

Chevy Volt 09-2014

PV-Anlage mit 5,16 kWp
https://www.sunnyportal.com/Templates/P ... c5cc97a9da
http://members.aon.at/skomarek/
atomroflman
111 kW - voll elektrisch
Beiträge: 429
Registriert: 2. Jul 2013 13:40
Kontaktdaten:

Re: 3 Lampen bei der vorderen Innenbeleuchtung

Beitrag von atomroflman »

Ist es egal, was für Dioden man dafür benutzt?
Falls nein, welche sollte man benutzen?
Ich brauch kein Gaspedal, ich habe ein Potentiometer... :)
Stef_Volt
60 kW - range-extended
Beiträge: 93
Registriert: 3. Sep 2014 10:40
Wohnort: 3464 Goldgeben
Kontaktdaten:

Re: 3 Lampen bei der vorderen Innenbeleuchtung

Beitrag von Stef_Volt »

Hi!

Nachdem ich jetzt nachgemessen habe und der Schalter für die Leselampen ein Wechselschalter ist, kann man auch einfach eine Drahtbrücke rein löten.
Wenn du eine Diode nimmst, kommt es auf die Lampenstrom an. Ich habe LED, daher genügt eine, von der Leistung her, schwache DIODE.

BG
Voltegrüße, Stefan

Chevy Volt 09-2014

PV-Anlage mit 5,16 kWp
https://www.sunnyportal.com/Templates/P ... c5cc97a9da
http://members.aon.at/skomarek/
Antworten

Wer ist online?

Mitglieder in diesem Forum: Baidu [Spider] und 1 Gast